zur Übersicht

Ruhe. Design. Exklusiv. Atemberaubender, renovierter Bungalow in Parkstadt! 231m² Wfl., 821m² Grund.

86609 Donauwörth, Bungalow zum Kauf
zur Übersicht
Alle Fotos anzeigen
Ihr Ansprechpartner für Besichtigungen und alle Fragen rund um dieses Objekt
Thomas Heinz
004982171058506

Objektdaten

783
BungalowHaus
86609  Donauwörth
231 m²
821 m²
6
Öl
Zentralheizung
1974
0 EUR / 2 Stellplätze
2.38% inkl. 19 % MwSt.  inkl. MwSt
849.000 EUR
17.04.2026
1974
nein

Objektbeschreibung

Ruhe. Design. Exklusiv. Atemberaubender, renovierter Bungalow in Parkstadt! 231m² Wfl., 821m² Grund.

Willkommen in Ihrem neuen Zuhause – einem Ort, an dem Ruhe, Stil und Lebensqualität in perfekter Harmonie zusammenfinden. In begehrter und sehr ruhiger Lage von Parkstadt präsentiert sich dieser freistehende Bungalow auf einem 821m² großen Grundstück als wahres Refugium für Menschen mit Anspruch an Wohnkomfort, Ästhetik und Privatsphäre.

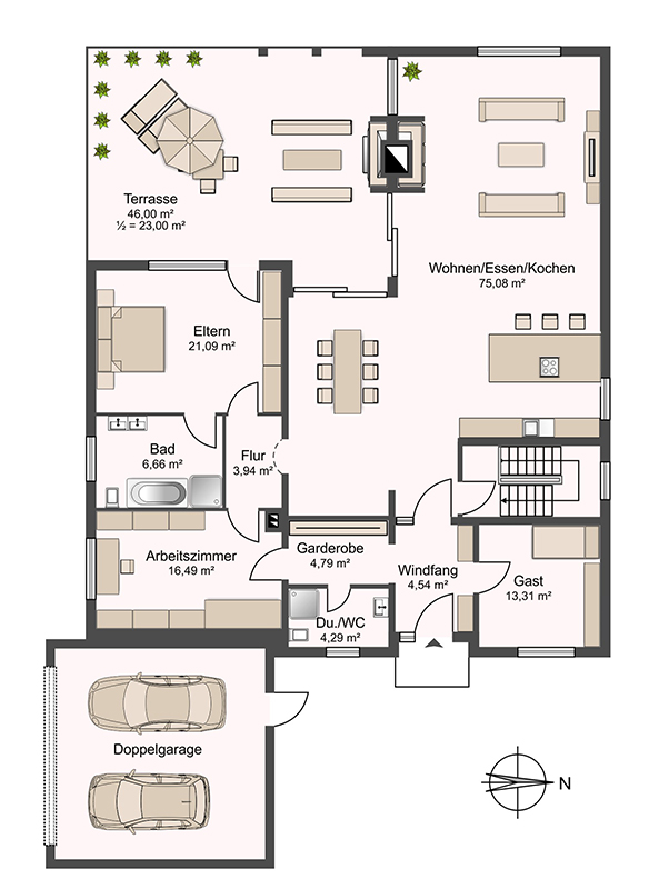
Mit einer Wohnfläche von ca. 231 m² begeistert die Immobilie durch ein großzügiges, durchdachtes Raumkonzept und eine hochwertige, umfassende Renovierung. Edle Eichenparkettböden und stilvolle Natursteinfliesen verleihen dem gesamten Haus eine warme, elegante Ausstrahlung. Komplett erneuerte Innentüren, fein abgestimmte Materialien schaffen ein modernes und zugleich behagliches Ambiente.

Das Herzstück des Hauses ist der beeindruckende, offen gestaltete Wohn- und Essbereich mit integrierter Küche auf 75m², ein einladender Lebensbereich, der Kochen, Genießen und Zusammensein auf besondere Weise verbindet. Die exklusive Einbauküche im Wert von ca. 45.000 € mit hochwertiger Geräteausstattung und großzügiger Kochinsel lässt keine Wünsche offen und unterstreicht die gelungene Verbindung von Design und Funktion.

Abgehängte Decken mit integrierten LED-Spots und ein modernes Beleuchtungskonzept schaffen ein stilvolles Wohngefühl. Elegante Lofttüren setzen einen besonderen architektonischen Akzent.

Im Untergeschoss erwartet Sie Ihre private Wellness- und Freizeitwelt mit Fitnessbereich, neuem Saunabereich, vollständig gefliestem Duschbereich und modernisiertem WC sowie weiteren Wohnräumen. Abgerundet wird dieses besondere Angebot durch eine erneuerte Viessmann-Ölheizung, Wasseraufbereitungsanlage sowie eine beheizbare Doppelgarage mit elektrischem Tor und einer Wallbox für das Laden eines E-Autos.

Wer das Besondere sucht, ist hier richtig! Wir freuen uns sehr auf Ihre Kontaktaufnahme.

Ausstattung

+ Bungalow aus 1974
+ umfassend renoviert in 2025/2026
+ 231,35m² Wohnfläche
+ 821m² Grundstück
+ ruhige und exponierte Lage
+ Donauwörth Parkstadt
+ beheizbare Doppelgarage mit elektrischem Tor und Wallbox
+ komplett neue Fußböden im gesamten Wohn- und Untergeschoss
+ Eichenparkett & Natursteinfliesen
+ erneuerte Innentüren
+ offene Wohn- und Essbereich mit integrierter Küche mit Kochinsel
+ Hochwertige Einbauküche (ca. 45.000 €) mit High-End-Geräten
+ Integrierte LED-Spots und moderne Beleuchtungskonzepte
+ Stilvolle Lofttüren im Zugangsbereich Wohnen und Keller
+ neuer Saunabereich inkl. Großraumdusche
+ Erneuerung des WC im Untergeschoss
+ Erneuerte Öl-Heizungsanlage von Viessmann
+ Wasseraufbereitungsanlage
+ sofort beziehbar

Sonstige Informationen

Bitte haben Sie Verständnis, dass wir ausschließlich Anfragen beantworten, die vollständige Kontaktdaten wie Name, Adresse und Telefonnummer beinhalten.

Der Verkäufer hat uns exklusiv mit dem Verkauf seiner Immobilie beauftragt. Wir bitten daher ausdrücklich den Direktkontakt zum Eigentümer zu vermeiden, bitte führen Sie jegliche Kommunikation ausschließlich über unser Haus.

Unser Exposé ist streng vertraulich. Eine Weitergabe unserer Offerte inkl. weiterer Informationen und Unterlagen an Dritte ist nur mit ausdrücklicher, schriftlicher Zustimmung der Immobilien-Arena GmbH zulässig.

Jegliche unbefugte Weiterleitung unseres Exposés samt Unterlagen an Dritte verpflichtet zum Schadenersatz in Höhe der kompletten Maklercourtage.

Für die Richtigkeit des Angebots wird keine Haftung übernommen. Alle Angaben basieren auf den Auskünften des Verkäufers und sind nicht selbst geprüft.

Lage

In einer der gefragtesten und zugleich angenehm ruhigen Wohnlagen von Donauwörth – in der beliebten Parkstadt – entfaltet diese Immobilie ihren ganz besonderen Reiz. Hier verbinden sich gewachsene Nachbarschaft, gepflegte Umgebung und ein hohes Maß an Lebensqualität zu einem Wohngefühl, das man sofort spürt.

Die Parkstadt steht für entspanntes Wohnen im Grünen. Gepflegte Einfamilienhäuser, ruhige Straßen und ein harmonisches Umfeld schaffen eine Atmosphäre, die sowohl Familien als auch anspruchsvolle Eigennutzer begeistert. Abseits von Hektik und Durchgangsverkehr genießen Sie hier wohltuende Ruhe und Privatsphäre – ein echtes Zuhause zum Ankommen und Durchatmen.

Gleichzeitig überzeugt die Lage durch ihre hervorragende Infrastruktur. Einkaufsmöglichkeiten für den täglichen Bedarf, Schulen, Kindergärten sowie Ärzte und Apotheken sind schnell erreichbar. Auch die charmante Altstadt von Donauwörth mit ihren Cafés, Restaurants und Einkaufsmöglichkeiten ist nur wenige Minuten entfernt und lädt zum Verweilen ein.

Die verkehrstechnische Anbindung ist ebenfalls ideal: Ob in Richtung Augsburg, Ingolstadt oder München – Sie bleiben flexibel und bestens angebunden, ohne auf die Ruhe Ihres Wohnumfeldes verzichten zu müssen.

Die Parkstadt in Donauwörth vereint damit genau das, was modernes Wohnen heute ausmacht: Ruhe, Qualität und eine Lage, die langfristig begeistert. Ein Ort, an dem aus Wohnen echtes Zuhause wird.
Die dargestellte Position der Immobilie ist nur eine ungefähre Angabe.

Wir freuen uns auf Ihre Anfrage!

Wir freuen uns auf Ihre Anfrage | Immobilien Arena GmbH
*Pflichtfeld
*Pflichtfeld